Kospel volně stojící teplovodní výměník SW 140l se spirálovou spirálou SW-140
Kód výrobce
5906564191039
Kód produktu
SW-140
- Výměník se spirálovým hadem o objemu 140 litrů, doporučený pro použití s kotlem ústředního topení Díky pokročilé technologii výroby získáte zařízení nejvyšší kvality.
Pro spolupráci s kotlem ústředního topení doporučujeme výměník se spirálou o objemu 140 litrů.
Díky pokročilé technologii výroby získáte zařízení té nejvyšší kvality.
- Výměníky vyrábíme z vybraných jakostí oceli od spolehlivých dodavatelů.
- Pro vaši jistotu a bezpečnost procházejí všechny výměníky 100% testy těsnosti a kontroly kvality smaltovaných nátěrů Jednotná vrstva smaltovaného nátěru odpovídající tloušťky vytváří nejkvalitnější antikorozní ochranu.
- Technické údaje:Kód produktu: SW-140
- Objem: 134l
- Teplosměnná plocha: 1,0m2Jmenovitý tlak (nádrž / cívka): 0,6 / 1,0 MPa
- Jmenovitá teplota: 95o
- CPlocha spodní cívky: 1,0 m
- 23/h: 30 kW
- Výkon spodní spirály při parametrech 55/10/45°C (teplota topné vody / teplota přívodní vody / teplota užitkové vody), průtok topné vody spirálou 2,5 m3/h: 9 kW
- Účinnost spodní spirály při parametrech 80/10/45°C (teplota topné vody / teplota přívodní vody / teplota užitkové vody), průtok topné vody spirálou 2,5 m3/h: 750 l/h
- Účinnost spodní spirály při parametrech 55/10/45°C (teplota topné vody / teplota přívodní vody / teplota užitkové vody), průtok topné vody spirálou 2,5 m3/h: 225 l/h
- Výkon výměníku při parametrech 80/10/45°C (teplota topné vody / teplota přívodní vody / teplota užitkové vody), průtok topné vody výměníkem 2,5 m3/h: 30 kW
- Tloušťka / materiál / typ izolace: 53 / PUR / NO
- Parkovací ztráty: 47W
- Model anody: AMW.800
- Průměr: 500mm
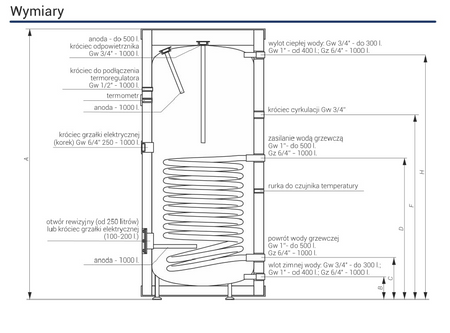
- Rozměr A: 1435 mm
- Rozměr B: 112 mm
- Rozměr C: 240 mm
- Rozměr D: 851 mm
- Rozměr F: 916 mm
- Rozměr H: 1305 mm
- Rozměr I: 1200 mm
- Čistá hmotnost: 54,5 kg
Možnost použití elektrického ohřívače od 1,4kW do 4,5kW!
Značka
Kód produktu
SW-140
Kód výrobce
5906564191039
Stav
Nový
Kód výrobce
SW-140
Značka
Kospel
Kapacita
140
Druh
inny
Typ
kapacitní
Rozsah tříd energetické účinnosti
A+++ - G
Třída energetické účinnosti
A
Varianta
s cívkou
Orientace
vertikální
Výkon ohřívače
6
Hmotnost výrobku s obalem
55
Parametry bezpieczeństwa
Parametry bezpieczeństwa
Dotaz na výrobek
Napište svoji recenzi




